Quadrilocale in vendita

Travagliato, Via Roma
Informazioni in agenzia
4 locali 4 locali
124 Mq 124 Mq
2 bagni 2 bagni

Quadrilocale in vendita

Travagliato, Via Roma

Descrizione annuncio

TRAVAGLIATO – NUOVA COSTRUZIONE

In una zona residenziale tranquilla e riservata di Travagliato, proponiamo in vendita un nuovo appartamento quadrilocale al primo ed ultimo piano, inserito in un elegante complesso di sole cinque unità abitative.

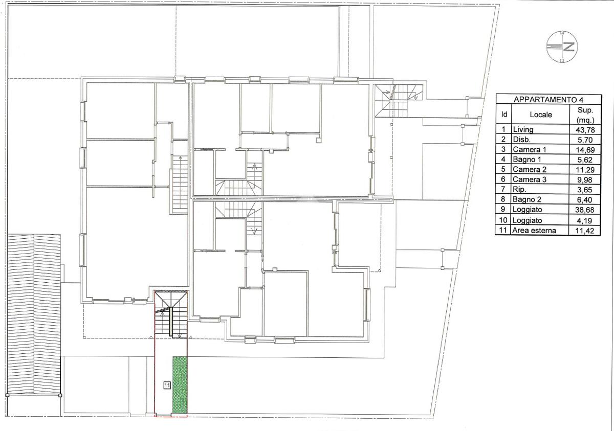
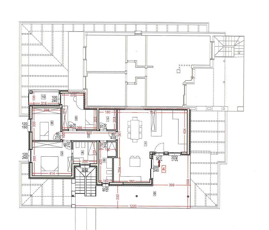
La soluzione, di nuova costruzione, dispone di ingresso indipendente con vialetto e scala di proprietà che conducono all’abitazione. All’ingresso si apre un luminoso soggiorno con cucina open-space, un comodo ripostiglio, due camere, una camera matrimoniale ampia con bagno privato e un secondo bagno con doccia.

All’esterno, la casa è impreziosita da due portici coperti: uno all’ingresso del soggiorno e uno collegato a una delle due camere, ideali per momenti di relax o per pranzi all’aperto.

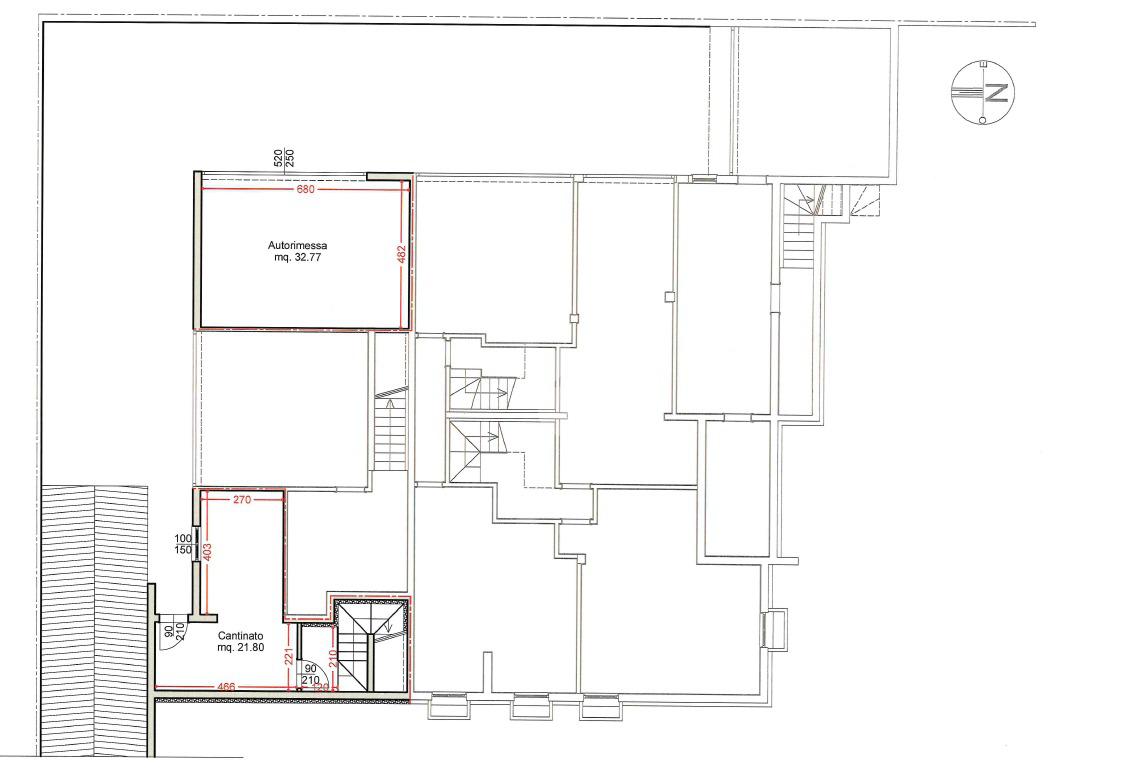
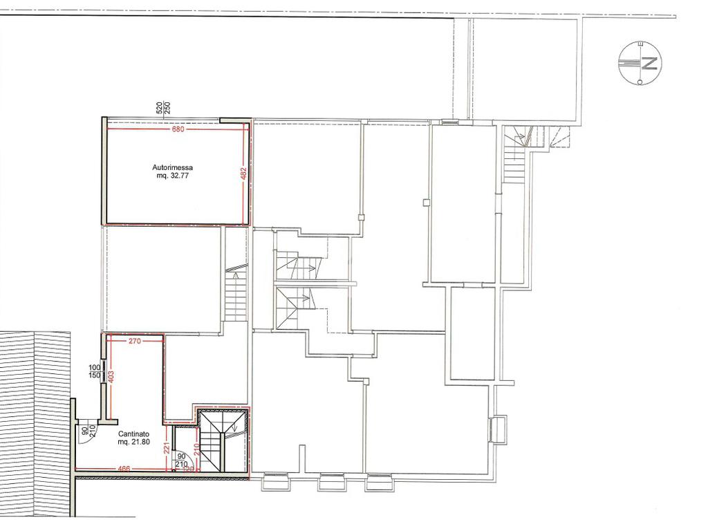
Al piano interrato sono presenti una spaziosa cantina e un box auto doppio in larghezza, facilmente accessibili e molto pratici.

L’appartamento offre dotazioni moderne e di alta qualità, tra cui riscaldamento autonomo a pavimento, impianto di climatizzazione in ogni stanza e classe energetica A3, sinonimo di comfort abitativo e risparmio energetico.

Una soluzione ideale per chi cerca indipendenza, tranquillità e ampi spazi, in un contesto residenziale moderno e curato.

Mostra tutto

Nelle vicinanze

Trasporto pubblico Trasporto pubblico
stazione di Ospitaletto-Travagliato
stazione di Ospitaletto-Travagliato
2,4 Km
Trasporto pubblico
180 m
Torbole Casaglia - Centro
Torbole Casaglia - Centro
2,9 Km
Ricariche auto elettriche Ricariche auto elettriche
Via Mulini
620 m
Scuole Scuole
Scuole Elementari Ingegnere Giovanni Capitanio
300 m
Scuola media statale Leonardo da Vinci
470 m
Accademia Musicale Santa Cecilia
490 m
Farmacia Farmacia
Farmacia Paterlini
150 m
Farmacia Comunale Piazza Libertà
180 m
Farmacia Comunale La Cupola
570 m
Conad
1,6 Km
Farmacia Comunale
2,9 Km
Supermercati Supermercati
Family Market
560 m
Conad
1,6 Km
Eurospar
1,8 Km
D+ Discount
2,9 Km
Negozi Negozi
Maybe
10 m
Negozi
20 m
Panificio Michelini
60 m
Forneria Bornati&Bornati
90 m
Nicoletta
120 m
Bar Bar
Bar Roma
90 m
bar Centrale
170 m
Forty Four
180 m
Erato'
550 m
Route 66
1,9 Km
Ristoranti Ristoranti
Ristorante pizzeria Il Gabbiano
80 m
Pizzeria La Rocca
230 m
Operbacco
420 m
Ristorante Pizzeria La Cupola
520 m
Ristorante La Torre
580 m
Mostra tutto

Caratteristiche

Rif.:
61131697
Piano:
1 di 2 (ultimo Piano)
Box:
2
Terrazzi:
2
Camere da letto:
3
Arredamento:
Assente
Mostra tutto
Prezzo Prezzo
Informazioni in agenzia
Spese annue Spese annue
€ 0
Proponi il tuo prezzoProponi il tuo prezzo

Classe Energetica

A3
A3
A3
A3
A3
A3
A3
A3
A3
EP globale non rinnovabile:
108.69 kW h/m² anno
EP invernale del fabbricato:
EP estiva del fabbricato:
Anno di costruzione:
2026
Riscaldamento:
Autonomo
Tipo impianto:
A pavimento
Tipo alimentazione:
Altro

Ti interessa visionare l'immobile?

Fissa un appuntamento  Fissa un appuntamento

Richiedi informazioni

Clicca su Leggi per aprire l'informativa
* Questi campi sono obbligatori
Affiliato
Tecnotravagliato Srl
Via Roma, 23 25039 Travagliato (BS)

Il nostro staff


  • Lorenzo Bonato
    Collaboratore

  • Elena Fedriga
    Affiliata

  • Stefano Poetini
    Affiliato

  • Nicole Scotto
    Coordinatrice

  • Roberto Scotellaro
    Collaboratore
Via Roma, 23 25039 Travagliato (BS)
Zona: Travagliato
Mostra su mappa
Affiliato
Tecnotravagliato Srl
Via Roma, 23 25039 Travagliato (BS)

2025 Tecnocasa Franchising S.p.A. - P. IVA 08365160152 - Via Monte Bianco 60/A 20089 Rozzano (MI). Ogni agenzia ha un proprio titolare ed è autonoma. Privacy policy | Policy utilizzo | Cookie policy